
YH2
加拿大
别墅
木材
建筑设计
住宅 别墅 设计

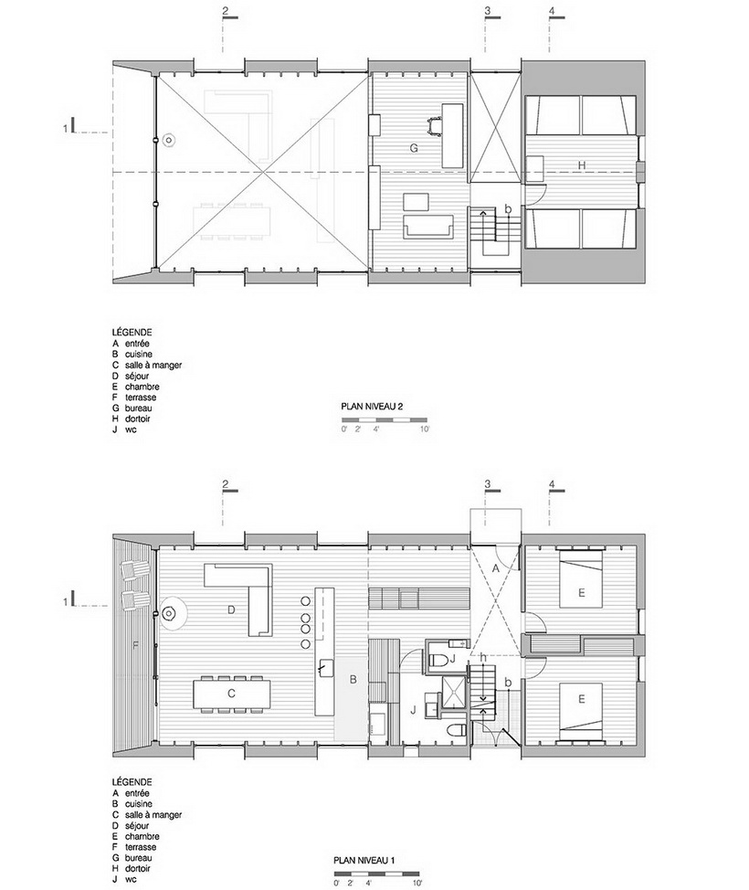
该住宅由全木质结构打造,巨大的山形屋顶将所有居住空间覆盖在其身下。住宅场地紧凑且绿地丛生,隐藏的建筑基底让住宅更显纯净清透之感。建筑尺度的分明和场地的严格把控,让住宅与周边环境相互协调。住宅周身包括墙壁和屋顶,全部由白色雪松板覆盖。两长向立面上的巨大玻璃面板,让室内外景色无缝对接。



其中南侧为全玻璃外观,外延的山形屋顶在该侧围合出一个户外门廊,居住者可以在此享受绝佳的湖水景观。通透的南立面让自然光线即便在冬季也可以穿透自如,而成熟茂密的树林既为居住者遮挡了炎夏烈日,又保障了居住环境的隐私。

涂白的木梁结构在光影的映衬下展现出活泼的律动之感。该度假屋首层拥有两间卧室,上层拥有一间开放式空间,最多可容纳12人居住。简单的空间规划,柔和的色调搭配,和纯净的生活方式,是日常生活休闲的首选之地。











